BAGSHOT,
£425,000 Sold (STC)

OFFERS IN EXCESS OF , Freehold

Property Details

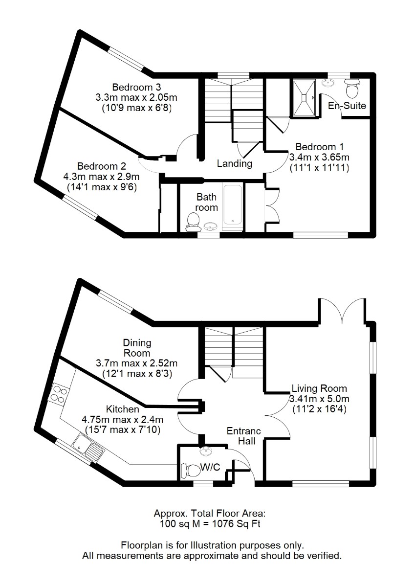
Jigsaw Estates are proud to offer this end of terrace property situated on the popular Earlswood Park development of Bagshot. The property was built by Charles Church and there are only four examples of this design of house on the development. The property consists of three bedrooms, two of which are good size double bedrooms with built in wardrobes, a third bedroom, en-suite shower room to the main bedroom and a family bathroom. Downstairs there is a triple aspect living room with doors onto the garden, a separate dining room, kitchen/breakfast room and a cloakroom. To the rear there is a garage and an allocated parking space. The property is within close proximity of Waitrose and it's nature reserve, M3 & A30 links and the local Bagshot High street with it's restaurants and pubs.

  • END OF TERRACE (ONLY 4 EXAMPLES OF THIS DESIGN ON THE DEVELOPMENT)
  • THREE BEDROOMS
  • EN-SUITE SHOWER ROOM & FAMILY BATHROOM
  • TRIPLE ASPECT LIVING ROOM
  • DINING ROOM
  • KITCHEN/BREAKFAST ROOM
  • SPACIOUS ENTRANCE HALL WITH CLOAKROOM
  • GARAGE TO THE REAR AND ALLOCATED PARKING SPACE
  • CLOSE TO WAITROSE, NATURE RESERVE, BAGSHOT HIGH STREET, A30 AND M3
5IeFYTslEpw
Floorplan
Energy Performance Certificate

Contact Us

Thinking of selling? Contact us to discuss our flexible fee structures and a bespoke package to suit your selling needs. Just fill out the form below and we'll be in touch.

Jigsaw Estates Limited, 22 Park Street, Camberley, Surrey, England, GU15 3PL
T 01276 538 638   E info@jigsaw-estates.co.uk